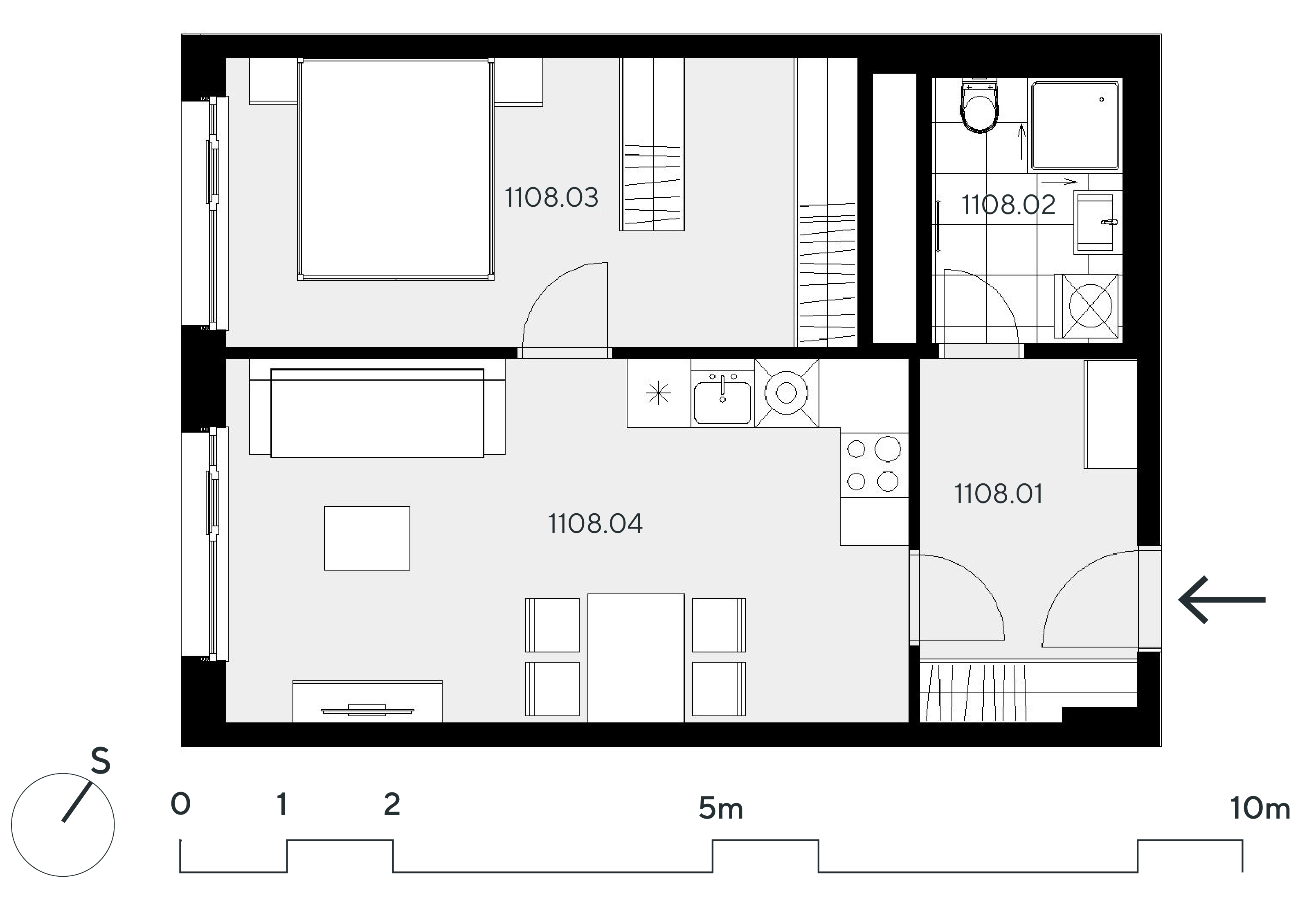
Jednotka 1108
Dispozice 2+kk
Podlaží 10
Podlahová plocha 52,3 m2
Orientace Z
Cena bytu s DPH
8 469 000 Kč
Stav Volný
umístění v projektu
umístění na podlaží
Proč si vybrat byt v
Duetě Kamýk?
01
Účelné dispozice
i supermarket
v přízemí
Bytový dům je navržen tak, aby byl život v něm co nejkomfortnější s ohledem na potřeby všech obyvatel. Byty v něm mají promyšlené dispoziční řešení, z vyšších pater se otevírá velkorysý výhled do okolí. V přízemí je počítáno s fitness i supermarketem.
02
Příroda
na dosah
Hned u projektu se rozkládá les Kamýk, který navazuje na Modřanskou rokli. Ten je možné navštívit i na kole, neboť kolem něj prochází hned dvě cyklostezky. Do čtvrt hodiny chůze od bytového domu je i přírodní biotopové koupaliště Lhotka.
03
Skvělá dopravní
dostupnost
Pohodlné dopravní spojení zajišťuje zastávka autobusu ležící doslova za rohem projektu, z níž jste do čtvrt hodiny na stanici metra C - Kačerov. Autem jste do 10 minut na Jižní spojce a do 15 minut na Pražském okruhu.
Slider
Slider
Slider
Slider
Spojte se
s námi
Poradíme Vám, jak financovat svůj nový domov nebo zhodnotit úspory investicí do real estate.
*Povinné údaje